



















- ST CYR L ECOLE
- -
- Centre ville
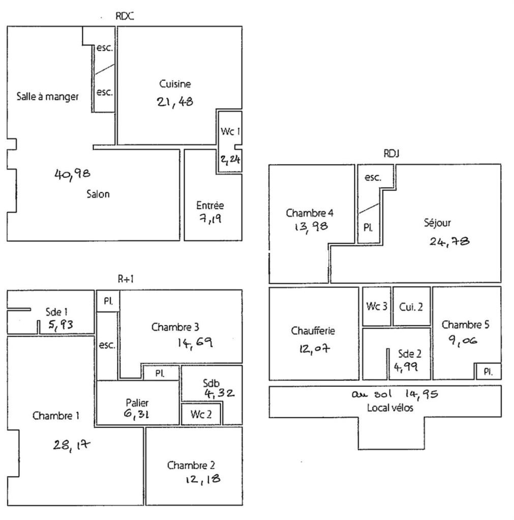
- maison de 213 m²
- - 9 pièces
- - 5 chambres
- - 1 salle de bains
- - 2 salles d'eau
Maison familiale édifiée années 70, située en hyper centre.
3 plateaux d'env. 71 m2 chacun, le rez de jardin ayant un accès indépendant (poss. profession libérale, bureaux, logement d'appoint...).
L'ensemble de 213 m2 hab. (282 m2 ut.) se décline comme suit :
Rez de jardin : une pièce principale desservant 2 cbres, kitchenette, SdE, toil. ind., chaufferie.
Rez de chaussée : l'entrée distribue une vaste cuisine familiale, une salle de réception avec cheminée d'agrément, double exposition.
Premier étage : palier, 3 chbres (poss. 4), SdB et SdE, placards.
Le comble sert de grenier parfaitement isolé, 2 fenêtres de toit.
Pièces de vie parquetées, pièces d'eau carrelées, chauffage Gaz, fenêtres en double vitrage. Aucuns gros travaux de rénovation à prévoir.
Dépendance et vide sanitaire exploitables en cave, abri bois, local vélo...
Représentante locale : Sophie METIVIER - EI - 06 70 70 37 60.
Diagnostics énergétiques
Afficher les bilans énergétiques
-
Votre interlocuteur
- Darnault Immo
- 19 rue Joseph Hubert
- 31130 Balma
- Tél. : 05 31 61 51 10